Every job is unique but it all starts with a phone call or email. We will discuss what you would like to have done, if it’s something that we are unable to do, whether it’s not possible in your time frame or if it is something we do not do, we will let you know right away so you do not waste your valuable time.

What we do next is meet with you. We will take
measurements and discuss what you would like. Even if you
are not certain of exactly what style you want we have the
experience to take your home, your tastes and your
personality into account as well as what will work with the
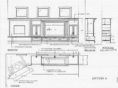
space you have. In this instance our client wanted to make
the living room not only more attractive and usable but to
be a focal point when entering through the attached kitchen.

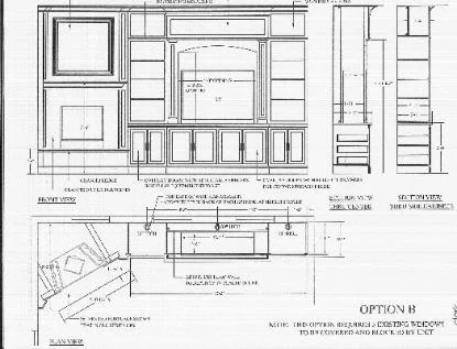
After our designer came up with a couple of ideas, we presented
them. All designs can have changes made to them right up to the
point of crafting the project. Our client went with option A. We also
worked up a computer desk for the opposite corner which we show
at the bottom of this page.

After our proposal has been accepted and all the materials decided upon , in this instance figured birch, anigre veneer and granite tops, we begin the project in our shop.

We coordinated with our homeowner to have
pre-installation prep work performed. In this case the
electrical was added for display lighting and necessary
connections for the gas fireplace were installed. When the
time came, we brought the cabinetry and our tools down

Slowly, over the course of three days, the piece began to take
shape. At this point we cleaned our work area and brought
our tools back to the shop to allow for the fireplace to be
installed.

Finally, after the tile was installed and the last
details taken care of, we were finished. The
only task left at the time of this photo shoot is
the installation of the display lighting at each
opening beside the TV. In this instance our
client had that accomplished. We can handle
most aspects of any project or we have others
we work with who are also craftsmen of the
highest quality and integrity.

Opposite wall, before and after.